
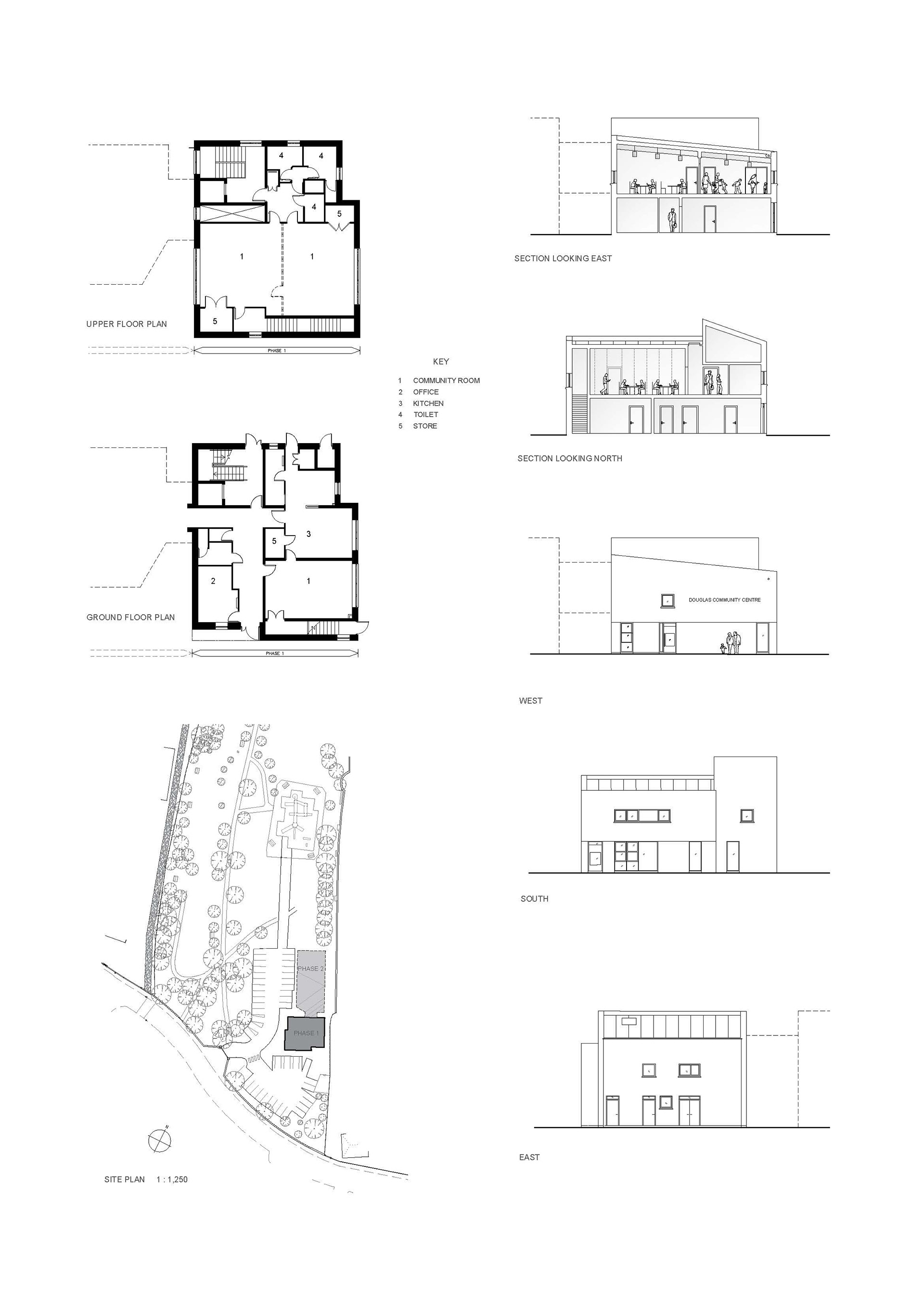
DOUGLAS COMMUNITY CENTRE
Project Category: Public
Area: 578m²
Location: Douglas, Cork
Set on the grounds of a public park in Douglas, Cork, the brief for this project entailed the construction of a new two storey extension to the existing Community Centre and alterations to the existing. The new extension includes community meeting rooms, offices, and ancillary services. The interior layout is arranged such that the community rooms can be divided with a folding partition, thereby improving upon the flexibility of the centre in accommodating the needs of the community.

